
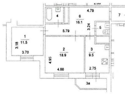
Продается 2х комнатная квартира, 66.2 кв.м., 3й этаж 17 этажного кирпично-монолитного дома 2004 г. постройки, индивидуальный проект. Удобное расположение в СВАО, метро Бибирево, 16 мин. пешком. Удачная планировка. Потолки - 3 м. Жилая площадь - 30.4 м2, кухня - 9.5 м2. Комнаты: 18.9/11.5 м2. Эргономичное расположение дверей и окон в жилых помещениях. Окна во двор. В квартире: типовой ремонт, несколько санузлов в кафеле, пол - паркет, кондиционер, телефон, интернет, видеодомофон. В доме круглосуточная охрана. Чистые подъезд и лифты. Территория двора огорожена и охраняется, во дворе детская площадка и парковка для жильцов дома, установлена система видеонаблюдения. Парковочные места есть всегда. Рядом с домом есть магазин, аптека, школа, детский сад (50 м.), поликлиника. Отличная инфраструктура. При желании - мебель и бытовая техника в подарок. "Заезжай и живи". Стоимость - 14 800 000 руб., первый собственник, альтернатива. Звоните сейчас.
| Добавлено: | 16.12.2015 |
Это объявление утратило актуальность | |